Nuevos Productos
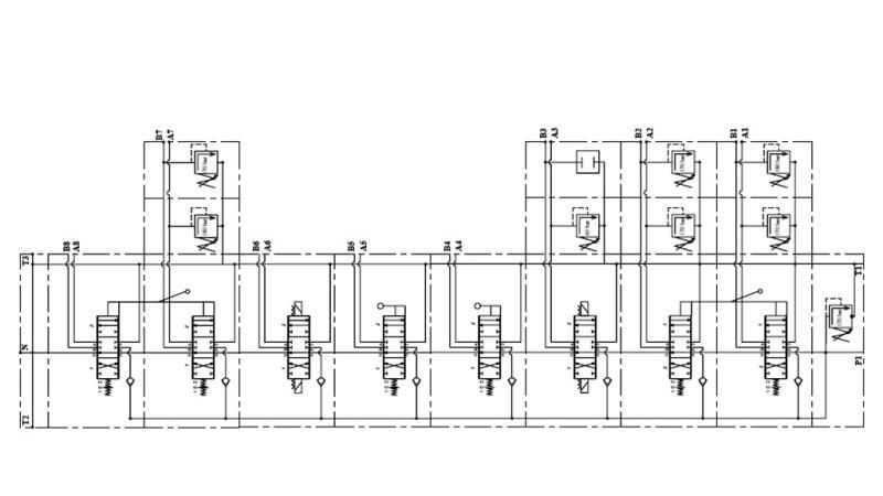
VÁLVULA HIDRÁULICA HIAB 8XPC70 + 2X JOYSTICK - CONTROL ELÉCTRICO 12V

Descripción general:
La válvula hidráulica manual o mecánica РC70 está diseñada para la distribución y control del flujo de trabajo entre la bomba hidráulica y los cilindros hidráulicos.
La válvula hidráulica se utiliza para remolques forestales – (HIAB).
Montada en un bloque de 8 segmentos.
Funcionamiento:
Todas las válvulas hidráulicas están equipadas con una válvula de seguridad. En la posición neutral (palanca en el medio), el aceite circula a través de la válvula. Cuando la palanca se mueve hacia un lado o el otro, la válvula hidráulica provoca el movimiento del cilindro o la rotación del motor hidráulico en una dirección u otra. Al soltar la palanca, regresa automáticamente a la posición neutral, el motor hidráulico o el cilindro se detiene en la posición actual, y el aceite vuelve a circular a través de la válvula. Es posible utilizar un elemento de 'centro cerrado', que cambia la válvula de modo que en la posición neutral el aceite no circule a través de la válvula o tal válvula ya no fluya. Al usar o conectar otras válvulas, es necesario utilizar un elemento de 'carry over', que permite el suministro de aceite para otras válvulas.
Para válvulas con husillos para función flotante, permite el flujo libre de aceite del cilindro, lo que significa que el cilindro se mueve libremente (o el quitanieves se adapta al terreno).
Las válvulas con husillos para cilindros de un solo efecto están destinadas a cilindros de un solo efecto.
Construcción:
РC70 es una válvula de distribución monobloque. Está hecha de hierro fundido EN-GJL300. Los husillos están hechos de acero al carbono y están cromados duro.
Conexiones:
El husillo se atornilla con dos tornillos M10.











